Passion Fruit Juice Factory

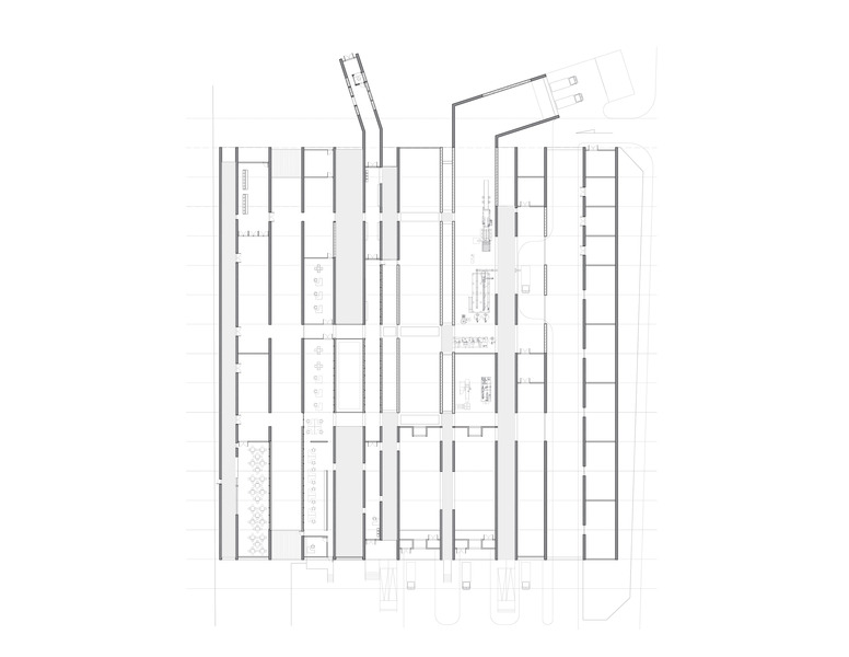
Located on a mango field along the highway between Malindi and its airport on the Kenyan coast, this project serves as a fruit pressing factory for passion fruit and mango but also as a social center for the workers, a storage facility for juice and as a ripening site for mangos. Given the expected growth of the project but as a way of minimizing on the impact that expansion usually has on the legibility and operability of a factory, the strategy entails expanding inwards from a clear perimeter of a square. The design consists of a series of parallel walls made of local coral stone with varying spaces and heights in order to allow for variety of uses inside. The roofs vary in height also to allow for rainwater collection and for ventilation catching the sea breezes at an oblique angle to the walls. The roofs consist of a variety of materials, from metal to concrete to palm leaves to jute depending on the function. A pattern of outdoor spaces interjects the activities and provides ventilation, lighting, social relief, and for future expansion.

Credits

In Collaboration With Mimarlar Tasarim (Han Tumertekin)
Project Team: Hashim Sarkis, Ezra Block, Laci Videmsky, Scott Hagen, Jonathan Scelsa